当前位置:
(一)产品简介
氮化铝污废水处理系统,依托第三代半导体材料与AlGaN材料组合的核心技术,打造高效、环保、小型化的水处理解决方案。污废水处理系统则推出 350T、700T、1000T等多型号设备,可满足不同场景的水处理需求。 (二)工作原理 1. 分子键断裂:265nm紫外光分子单光子能量达504kj/mol,打断有害物质分子键,将其分解为CO₂和H₂O等无毒无害物质; 2. 自由基氧化:深紫外光激发污水中氧气和水分子产生・OH等强氧化性自由基,进一步氧化分解有机物和微生物; 3. 处理流程:污水先经预处理单元(过滤、沉淀等)去除大颗粒杂质和悬浮物,再进入深度处理单元通过DUVLED深紫外照射,实现污染物去除与杀菌,最终达标排放或回用。 | | |
(三)核心功能
1. 污水净化:有效去除COD、氨氮、总氮等污染物,处理后水质符合国家排放标准;
2. 智能运维:支持远程监控与AI分析,实现自动化运行与管理;
3. 高效节能:氮化铝UVC芯片功耗远低于传统紫外消毒设备,污废水处理设备每小时最高耗电仅5.5度;
4. 安全环保:无汞设计避免汞污染,无臭氧产生,紫外泄漏量<0.1μW/cm²,符合安全标准,可人机共存;
5. 小型化模块化:水消毒设备外形尺寸仅10×69mm,污废水处理设备采用紧凑设计,最大规格占地仅12平方米,便于集成、安装与移动;
6. 长寿命:核心模组寿命达10万小时,降低运营成本;
7. 适应性强:可应对不同水质、水量变化,灵活调整工艺参数。
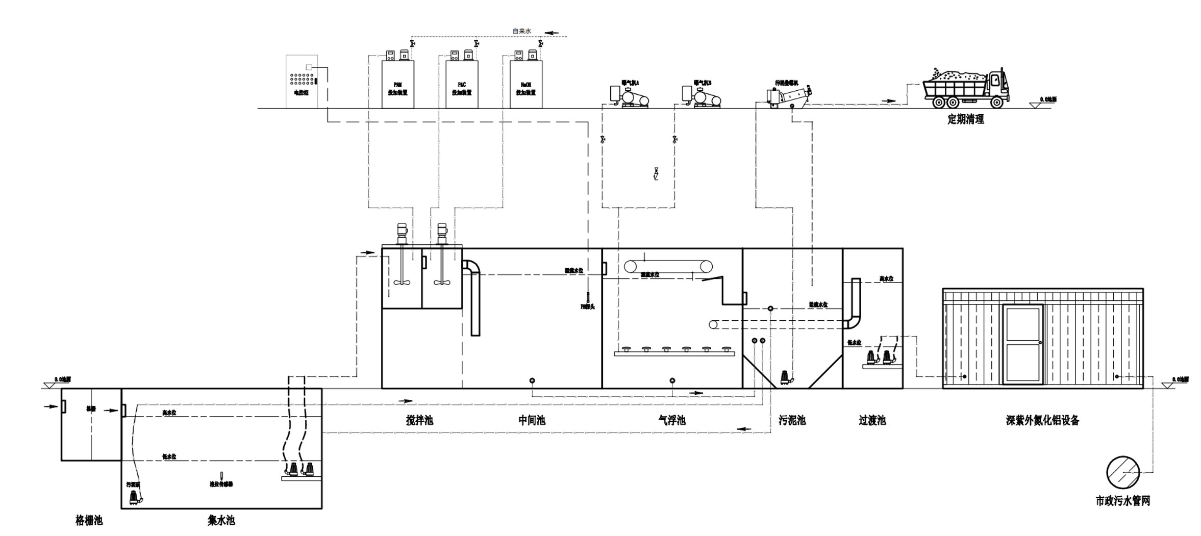
(一)污水治理系统工艺图

(二)污水治理系统工艺效果

(三)设备安装示意图

(一)性能优势
1.杀菌效率:较传统汞灯技术领先35+,较普通UVCLED、准分子氯化氪等技术灭菌效率更高,基本灭菌单元数量仅1个即可实现99%灭菌率;
2.环保性:无汞、无臭氧、无二次污染,较传统汞灯技术领先100+;
3.体积优势:较传统汞灯技术领先80+,便于携带、移动与集成。
(二)对比传统处理方式(生化法等)
| 对比维度 | 传统废水处理方式 | 氮化铝光量子处理系统 |
处理速度 | 流程长(好氧区6~8小时,厌氧区≥8小时) | 高效快速(3.2m³/秒,污染物分解≤1S) |
占地面积 | 大 | 小(模块化设计) |
处理效果 | 不能完全处理污染物 | 污染物分解彻底,达标排放 |
二次污染 | 产生污泥、余氯等二次污染物 | 无二次污染,不额外产生污泥 |
运维成本 | 耗材成本高,人力投入大 | 无二次污染,不额外产生污泥 |
系统复杂性 | 高,施工周期长 | 低,施工周期短 |
(三)其他优势
1、政策适配:符合《水俣公约》对无汞紫外光源的要求,响应环保政策;
2、经济划算:一次性建设成本约为传统工艺的三分之一,设备折旧周期5年,长期运营成本低;
3、安全性高:人体安全性高,无化学残留,对环境无影响。

350T 700T 1000T
| 产品型号 | 350T | 700T | 1000T |
| 处理能力 | 350吨污水/天 | 700吨污水/天 | 550吨污水/天 |
| 运行功率 | 3900W | 4700W | 5500W |
| 产品尺寸 | 3831*2198*2322mm | 4833*2198*2322mm | 6291*2198*2322mm |
(一)适用于
医疗、工业化工、造纸、印染、
学校、酒店、食品厂、水产养殖、
市政污水厂等行业
造纸类、印染类、电镀类、制药类(非中药)、石油化工类、高盐、医疗等多种废水
(二)部分案例
| ![]() | ![]() |
| 印染厂污水处理 | 化工厂尾水处理 | 医院污水处理 |